asp Architekten haben in Kirchheim am Neckar eine Gemeindehalle aus den 70er Jahren transformiert und an neue Anforderungen angepasst. Entstanden ist ein multifunktionales Gebäude, das seiner Bedeutung als Ort der Begegnung wieder gerecht wird.

Bild: © Zooey Braun, Stuttgart
Im Grunde gibt es sie überall. Sie nennen sich hier wie dort Stadt- oder Gemeindehalle, manchmal auch Gemeindezentrum. Sie stehen sinnbildlich für den Wunsch nach einem Ort der Begegnung. Viele von ihnen sind in den 60er oder 70er Jahren entstanden und inzwischen nicht nur in die Jahre gekommen, sondern auch in ihrer Nutzung überholt. Ein gelungenes Beispiel dafür, wie die Wiederbelebung eines solchen Ortes bei gleichzeitigem Erhalt des Bestandes aussehen kann, zeigt die Gemeindehalle in Kirchheim am Neckar. Von der Architektenkammer Baden-Württemberg wurde das Projekt hierfür im Rahmen von „Beispielhaftes Bauen“ im Landkreis Ludwigsburg ausgezeichnet.
Die Aufgabe war es, wichtige Funktionen für die Gemeinde, wie eine Kindertagesstätte und eine Sporthalle, unterzubringen und diese in einem begrenzten Kostenrahmen umzunutzen. Dabei bot sich die Möglichkeit, den Bestand so zu programmieren, dass das Gebäude durch eine Vielfalt an Nutzungen eine neue Bedeutung für die Gemeinde bekommt und in Zukunft rund um die Uhr bespielt werden kann – von den Kindern am Morgen bis zu den Vereinen am Wochenende.

Bild: © Zooey Braun, Stuttgart
Lebendige Fassadengestaltung
Die Gemeindehalle befindet sich etwas außerhalb von Kirchheim, in einem landschaftlich schön gelegenen Kontext. Die Kulisse: ein Kessel mit Weinbergen, der sich einst aus dem Altarm des Neckars gebildet hat. Um die Halle auch symbolisch mit ihrer Umgebung zu vernetzen, entstand die Idee, für die Fassadengestaltung ein Material zu wählen, das sich ähnlich wie die Weinberge über den Jahresverlauf verändert. So fiel die Wahl auf Cortenstahl, der die Farbigkeit der Weinberge im Herbst aufnimmt, besonders langlebig und dabei wenig pflegeintensiv ist.

Bild: © Zooey Braun, Stuttgart
Während der linke Teil der Halle saniert und erhalten werden konnte, wurde der rechte Teil aufgrund seiner Substanz abgebrochen, neu errichtet und auf die neuen Nutzungen ausgerichtet. Um die unterschiedlichen Funktionen klar voneinander abzuheben, aber dennoch eine Verbindung zu schaffen, wurden die Kubatur und der für das Gebäude prägende Zwischenbau erhalten. Im Inneren setzt sich dabei der Cortenstahl fort. Er kleidet den Zwischenbau aus und verstärkt dadurch die Verbindung von innen und außen. Oberlichter unterstützen die natürliche Belichtung und zeichnen, je nach Sonnenstand, schöne Schattenspiele auf die Wände aus Cortenstahl.
Ein schönes Detail: Der Zwischenbau fungiert nicht nur als wichtiges Bindeglied aller Funktionen. Hier wurden auch der Haupt- und der Hintereingang untergebracht. Beide Eingänge sind vollverglast und machen dadurch die räumliche Nähe zu den Weinbergen schier greifbar. Beim Betreten der Halle entsteht dabei das Gefühl, man laufe direkt auf die Weinberge zu.
Multifunktionales Nutzungs- und Gestaltungskonzept

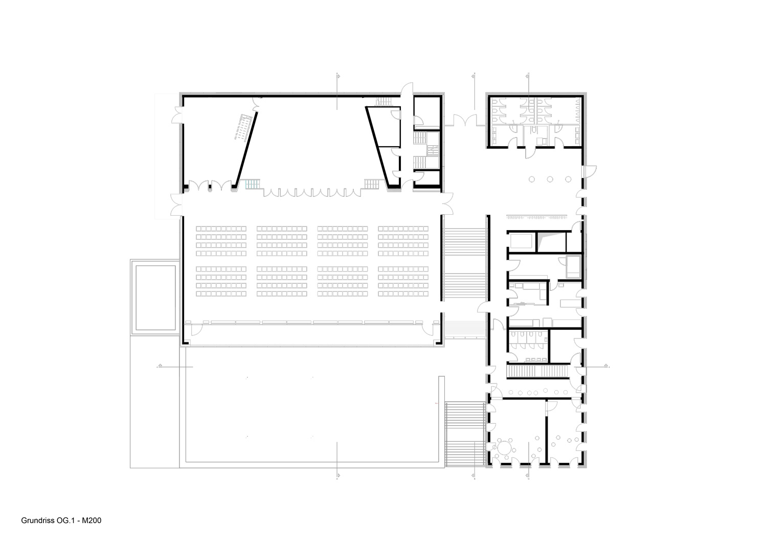
Allein an der Fassade lassen sich die unterschiedlichen Funktionen der Halle ablesen: Während im rechten Gebäudeteil eher kleinteiligere Öffnungen die Räume der neuen Kindertagesstätte markieren, prägen größere Öffnungen die oberen Geschosse des linken Gebäudeteils mit Gemeindehalle, „Bädle“ und Sporthalle sowie der rückwärtig angeordneten Gymnastikhalle.
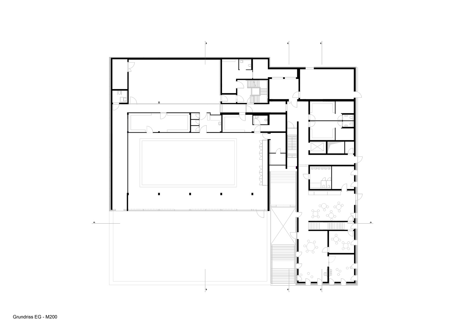
Das Zentrum bildet dabei die Gemeindehalle selbst. Mit großer Bühne, Platz für bis zu 800 Personen und einer vollflächigen Glasfassade, die den Blick auf den Vorplatz freigibt, ist hier ein zeitgemäßer Raum für Veranstaltungen und Feierlichkeiten der Gemeinde und ihrer Vereine entstanden. Unmittelbar darunter wurde das von den Kirchheimern genannte „Bädle“ saniert. Ein Lehrschwimmbecken, das vor allen Dingen von Schulklassen genutzt wird. Um auch den Sportvereinen und -klassen mehr Raum bieten zu können, wurde im Untergeschoss zusätzlich eine Sporthalle mit Umkleidekabinen integriert.

Bild: © Zooey Braun, Stuttgart
Die Kindertagesstätte „Klecks-Box“ im rechten Gebäudeteil erstreckt sich als einzige Nutzung über drei Geschosse und bietet dabei Platz für bis zu 60 Kinder. Die Räume sind ideal auf das offene Konzept der Einrichtung ausgerichtet und bieten, je nach Etage, verschiedene Aufenthaltsqualitäten: Von einem großzügigen Außenbereich im Erdgeschoss über die Mensa und das Atelier im ersten Obergeschoss bis hin zu Räumen für die Verwaltung sowie Spielzimmer im zweiten Obergeschoss.
Die eingesetzten Materialien finden sich in beiden Gebäudeteilen und auf allen Ebenen wieder. So kam zum Beispiel sowohl in der Kita als auch in den Sportbereichen ein Kautschuk-Linoleum zum Einsatz, während in den Flurbereichen ein Sichtestrich verwendet wurde. Ein weiteres Element, das sich durchzieht: eine Holzlamellenverkleidung, die den großflächigen Räumen, wie Sport-, Gymnastik- und Gemeindehalle Wärme verleiht. Für eine bessere Orientierung wurde für jedes Geschoss eine eigene Farbwelt entwickelt.
Projektdaten










