Sanierung und Erweiterung in Weinstadt: Blick vom Altbau zum Übergang in den Anbau. (Bild: Jürgen Bubeck)
Umbauen, Sanieren, Erweitern haben sich zum selbstverständlichen Teil des Architekturpublizierens gemausert. Dennoch darf darüber nachgedacht werden, ob mit der gängigen Praxis alles eingeschlossen wird, was das Umbauen bedeuten kann. Das zeigt ein Projekt aus der Nähe von Stuttgart. Es eignet sich dafür, das Umbauen als alltäglichen Prozess zu sehen, als Prozess, der nicht endet. Gerade weil es nicht perfekt ist, öffnet es den Raum für das, was noch nicht absehbar ist.
2012, als es noch nicht Usus war, den Wert des Bestands zu betonen und darauf zu insistieren, ihn zu erhalten, hat Bruno Reichlin, Architekt und Architekturtheoretiker, der Hoffnung Ausdruck verliehen, die Bewahrung des architektonischen Erbes könne „so manche hartnäckige Denkgewohnheit beseitigen.“ Er hoffte auf eine „Poetik des Zwischenraums“, durch die die Ästhetik des Bauens im Bestand sich von der „derzeit vorherrschenden“ unterscheiden könne. Die Architektur der Umnutzung, der Wiederherstellung, der Restaurierung sei selten spektakulär, sie sei mehr eine Kunst des Ausweichens, „sie übt die Kunst des Judoka, der die Stärke des anderen (in diesem Fall, des unserer Obhut anvertrauen Werkes) zu seinen Zwecken nutzt.“ (1)
Dabei handelt es sich in vielen Fällen ja nicht einmal um ein Werk, das umgebaut, umgenutzt, weitergebaut werden soll, sondern eher um ein Konglomerat, ein Resultat einer Entwicklung, die irgendwann vorübergehend zum Stillstand gekommen ist. Die Aufgabe des Bauens im Bestand ist es dann, den Faden wieder aufzunehmen, an ihn anzuknüpfen und nicht darauf zu beharren, dass überhaupt ein Werk entstehen müsse, das abgeschlossen ist, als fertiges Projekt dokumentiert werden kann und wie ein Brocken weitergereicht wird, damit irgendwann ein Anderer in Jahren ihn behauen kann. Eher geht es darum, eine Erzählung aufzugreifen, an ihr weiterzuschreiben, ohne sie zu beenden, wie das Arbeiten an einer Serie mit Episoden, mit neuen Protagonisten, die dazu kommen, alten, die blieben und solchen, die verschwinden und nur noch Spuren hinterlassen.
Ohne Beschönigung
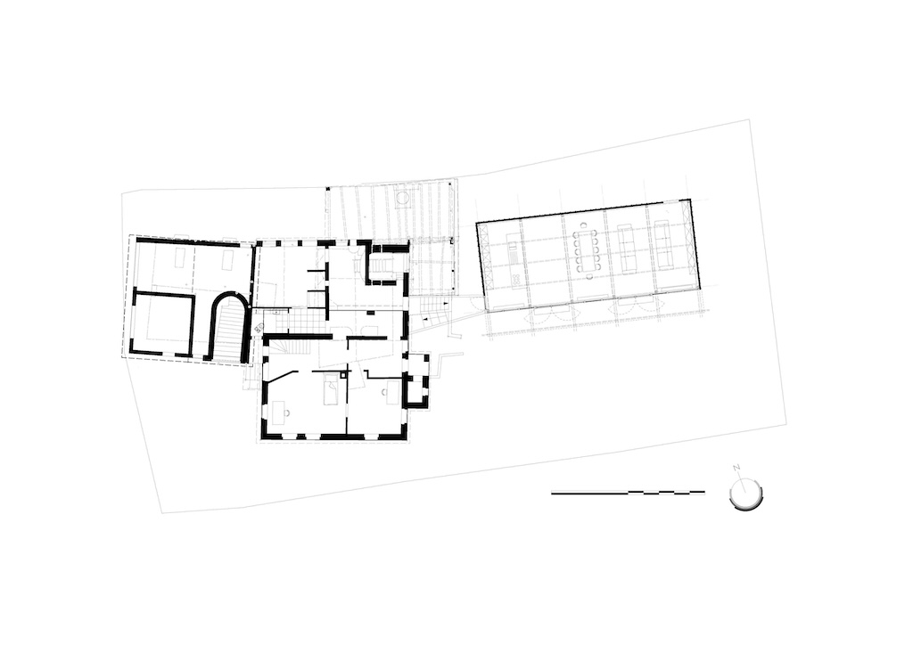
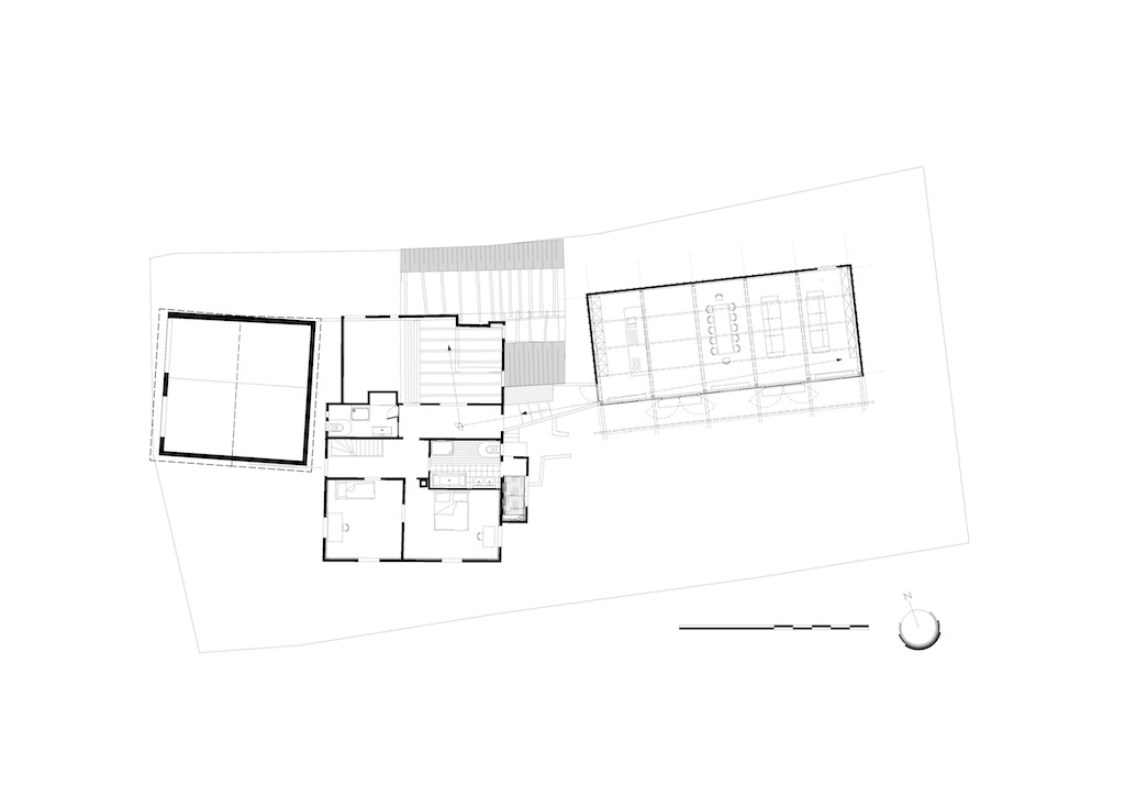
In einem Haus im Remstal, östlich von Stuttgart, in einem Ortsteil von Weinstadt, lässt sich zeigen, was das heißen kann. Ein alter Weinbauernhof in zweiter Reihe, direkt hinter dem stattlichen Pfarrhaus und der Dorfkirche, wurde hier vom Architekturbüro Florian Stocker BDA umgebaut und erweitert. Das alte Ensemble war nur deswegen erhalten geblieben, weil für einen Neubau die Zufahrt zum Grundstück zu eng war. Der Bestandsschutz aber lässt die Sanierung und Erweiterung zu. Der Bestand, das ist ein für die Region typischer, auf engem Raum immer wieder erweiterter und umgebauter Komplex, in dem Scheune, Stall, Wohnhaus ineinander übergehen. Giebel in alle Himmelsrichtungen. Nicht immer mit dem besten Material, nicht alles auf langfristige Dauerhaftigkeit angelegt. Das Haus erzählt von Entbehrung und harter Arbeit, auch vom Erbrecht, der Realteilung, die die Entstehung größerer Höfe verhinderte. Die Häuser wurden unter den Erben geteilt, nicht selten wohnten mehrere Familien auf engstem Raum zusammen.

Die Figur des Hl. Florian im Eingangsraum des Altbaus. Nach ihm ist das Haus nun benannt. (Bild: Florian Stocker)
Zum Anwesen gehören zwei alten Gewölbekeller, die auf das 17. Jahrhundert zurückgehen. Saniert wurde hier so, wie es der Idee des kleinstmöglichen Eingriffs Lucius Burckhardts entspricht: mit wenigen (auch Geld sparenden) Mitteln, mit dem Mut, den Bestand überall, wo möglich, sichtbar zu lassen, in dem nur die Ergänzungen vorgenommen wurden, die der Familie mit vier Kindern ermöglichen, das Haus zu bewohnen. Einfach Bauen, und zwar wirklich einfach – und konsequent. Mit einer Innendämmung, isolierverglasten Stahlrahmeninnenfenstern, die den Erhalt der alten Fensterkonstruktion möglich machen. Man betritt das Haus von Norden, vom ehemaligen Stall, vorbei an einer in einer Nische neu eingefassten Floriansfigur, die beim Umbau gefunden wurde. Von hier geht es zu Bädern, Treppenhaus, Schlaf- und Kinderzimmern im Haupthaus. Es bleiben Nischen, Nebenräume, Zwischenräume, der verwinkelte Bestand lässt sich nicht restlos in ein zweckbestimmtes Raumprogramm überführen. Oberflächen sind behutsam saniert, in ihrer Patina bewahrt, alte Elemente bleiben als Artefakte, Relikte, Spuren. Ein neuer Boden, sparsam neu eingefügte Einbauten; eine neue Betonstein-Stufe hier, eine behutsame Wandausbesserung da, die Leitungen sind sichtbar verlegt, neue Wände sind in Leichtbauweise eingefügt. Über PV-Flächen wird Sonnenenergie in das Heizungssystem eingespeist, die Grundlast trägt eine Gasheizung.

Blick auf den Alt und Neu verbindenden „Zeitenwandler“, den verglasten Übergang mit bichromatisch beschichtetem Glas. (Bild: Florian Stocker)
Nach Osten hin verbindet ein verglastes Treppenhaus den Bestand mit der rückwärtigen Erweiterung, die im Gegensatz zur Kleinteiligkeit des Bestands als großer offener Raum in leichter Stahlkonstruktion errichtet und nach Süden ganzseitig verglast ist: Küche, Ess- und Wohnzimmer in einem. Und wenn es warm wird, kann sich der Raum wie eine Veranda zum Garten öffnen. Bichromatich beschichtet, schillert das Glas des Verbindungstreppenhauses vielfarbig, Zeitenwandler nennt der Architekt dieses Bauteil, Schleuse zwischen den verschiedenen Epochen, die hier zueinander finden.
Das Haus ist so gut bewohnbar, ohne fertig zu sein. Die Gewölbekeller können für die Nutzung noch erschlossen und hergerichtet, Lager und Abstellräume für eine noch unbekannte Verwendung aktiviert werden. Der Bauernnutzgarten wird weiter betrieben, das Haus verleugnet durch den Umbau nicht, was es war, die Vergangenheit wird nicht in behübschendem Licht verklärt, nicht idyllisiert und verharmlost. Es bleiben Gegenstände und Konstruktionen, die als Zeitenbrücken fungieren: Sie erzählen von der Geschichte, vom Leben in anderen Zeiten, auch wenn sie heute nicht mehr gebraucht werden, so die Außentreppe zur Erschließung des ersten Obergeschosses von Osten.

Blick auf den Erweiterungsbau von Südost. Inzwischen wurde der Bestandsbau im Hintergrund verputzt. (Bild: Florian Stocker)
Nur vorläufig
Die Offenheit der nicht beendeten Erzählung, die Cliffhanger, die die Fortsetzung ebenso einfordern wie offen lassen, schaffen jene Poetik des Zwischenraums, auf die Reichlin hoffte. Poetisch heißt auch: auf die Präzision des Eindeutigen zugunsten eines nicht festgelegten Assoziationsraums zu verzichten. Das stellt die Praxis, mit der Architektur verbreitet wird, auf die Probe. Dieser Umbau ist weder spektakulär noch von jener Klarheit und Präzision, die sonst die (auch bei uns) veröffentlichten Umbauprojekte auszeichnen. Weil es genau das nicht tut, vielleicht auch nicht jedes Detail mit einem Beharren auf seiner ästhetischen Bedeutung für das Ganze ausgeführt wurde, sondern mit dem Geist des Pragmatischen, der diesen Bestand, so wie er ist, entstehen ließ, erzählt dieses Projekt davon, was Umbauen, Umnutzen, Weiterbauen heißen kann, wenn wir nicht das Werk erwarten und zur Voraussetzung machen, über es zu sprechen. Es wachsen Geschichten, aber es entstehen keine ausstellungs- und publikationsgeschmeidigen Dokumentationen.

Einfaches Bauen: Leitungen sichtbar verlegt und neue Stahlrahmeninnenfenster. Die Wand zeigt die Spuren des Alten. (Bild: Florian Stocker)
Es lohnt sich deswegen erst recht, hinzusehen, um etwas darüber zu erfahren, wie so umgebaut werden kann, dass bald schon weitergebaut werden kann. Projekte wie dieses ergänzen und erweitern das, was über das Umbauen publiziert wird, um wesentliche Aspekte. Um auch anderswo sehen und zulassen zu können, dass so umgebaut wird, dass nicht ein (vermeintlich) fertig saniertes Produkt das Ergebnis ist. Auch das eine der hartnäckigen Denkgewohnheiten, die aufgebrochen werden dürfen: Um einen Ausblick auf einen zukünftigen Alltag des Umbauens zu bekommen, der deswegen zum Alltag werden kann, wenn er nicht endet. „Wichtigste Eigenschaft des Alltags ist: Er geht immer weiter, duldet keine Unterbrechung“ hatte Hans Paul Bahrdt festgehalten (2). Der Notwendigkeit, sich den Aufgaben, die der Alltag stellt, zu widmen, lässt sich nicht entkommen. Wenn wir den Bestand ernst nehmen, gibt es nur Vorläufigkeiten, und das verlangt die Fähigkeit, sich im Fluss der Dinge, der Zeiten einzurichten ohne das Vorläufige als Defizit wahrzunehmen. Dass auch das ein Poetisches einschließt, hat Florian Stocker verstanden. Im Sommer 2023 lud er im Rahmen des IBA-Festivals den Dichter Ulf Stolterfoht ein, hier aus seinen Gedichten zu lesen. So wurden im Haus selbst dessen die Brüche, Fügungen und Konflikte zur Qualität, die Dokumentation der Lesung als Wanderlyrik veröffentlicht. Seine „fachsprachen LIV“ hatte Stolterfoth überschrieben mit „gegen vollendung“. Und an anderer Stelle schrieb er: „gewichtige drift / richtung bruch, brüche aber sind dafür da, »begangen zu werden«/ fehler macht man nebenher, losigkeit ist mehr als kein wort.“ (3)
















